View Properties
4702 schoolside lane St Joseph, MO 64503
4702 schoolside lane
St Joseph, MO 64503
$230,000.00
3
Number Of Beds
2 Full Baths
1 Half Baths
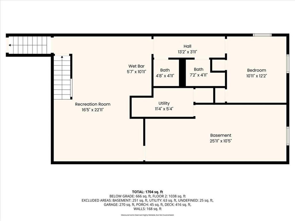
1704
Square Footage
1967
Year Built
8712 Square Feet
Lot Size
St. Joseph
School District
Remarks
Beautifully updated and move-in ready, this spacious ranch has room for everyone. The main level features three bedrooms, two and a half baths, a bright living room, and an eat-in kitchen with stainless steel appliances and access to a brand-new back deck. Downstairs, the finished basement includes a fourth non-conforming bedroom, a rec room with a wet bar, and large storage space. The fenced backyard, new roof, and one-car attached garage with both main-floor and basement entry add practicality to this stylish home.
Listing Office: RE/MAX PROFESSIONALSMLS ID: 2579838
Contact Us about this listing!General Features
County Buchanan
Property Type Single Family Residence
In City Limits Yes
School District St. Joseph
Building Features
Finished SQFT 1704
Year Built 1967
Bedrooms 3
Full Bathrooms 2
Half Bathrooms 1
Exterior Finish Metal Siding
Roof Composition
Basement/Foundation Finished,Full
Flooring Carpet,Laminate,Tile
Heating Forced Air
Cooling Electric
Interior Features Wet Bar
Appliances Dishwasher,Microwave,Refrigerator,Gas Range
Garage Spaces 1
Property Features
Lot Size 8712 Square Feet
Parking Attached,Off Street
Contact Us































