View Properties
3114 olive street St Joseph, MO 64507
3114 olive street
St Joseph, MO 64507
$143,900.00
3
Number Of Beds
1
Full Baths
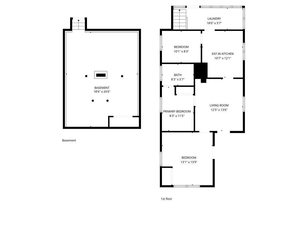
900
Square Footage
1902
Year Built
0.14 Acres
Lot Size
St. Joseph
School District
Remarks
Welcome home to this charming and completely remodeled gem - the perfect place to plant your roots! From the moment you arrive, you'll appreciate the level lot, off street parking, and great curb appeal. Step inside to discover a warm and inviting living room, an updated kitchen featuring stainless steel appliances, 3 sun filled bedrooms, and 1 full bath. The delightful sunroom is the perfect spot for your morning coffee, and main floor laundry adds everyday convenience. Best of all, the big-ticket items are already taken care of, including a brand new roof and gutters, A/C unit, water heater, and electrical panel, mean you can move in with total confidence. A full unfinished basement offers incredible potential to grow into the space and make it your own. This is truly move-in ready living at its finest. Don't let this one slip away!
Listing Office: RE/MAX PROFESSIONALSMLS ID: 2610537
Contact Us about this listing!General Features
County Buchanan
Property Type Single Family Residence
School District St. Joseph
Building Features
Finished SQFT 900
Year Built 1902
Bedrooms 3
Full Bathrooms 1
Half Bathrooms 0
Exterior Finish Wood Siding
Roof Composition
Basement/Foundation Full,Inside Entrance,Unfinished
Flooring Carpet,Luxury Vinyl
Heating Forced Air
Cooling Electric
Interior Features Ceiling Fan(s)
Appliances Dishwasher,Refrigerator,Stainless Steel Appliance(s)
Property Features
Total Acres 0.14
Lot Size 0.14 Acres
Parking Off Street
Access/Transportation Paved
Contact Us



























